DOCUMENTACIÓN VISUAL: SIGLO XVIII

EDIFICIOS TEATRALES

 

Ir a:

Documento siguiente

Indice Palacio Buen Retiro

 

Documento:

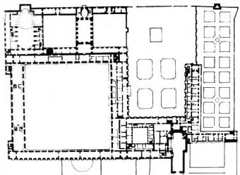
Planta del Palacio del Buen Retiro (1640).

Dibujo de René Carlier, 1712.

Fuente: Ángel Luis Fernández Muñoz, Arquitectura teatral en Madrid, Madrid, editorial Lavapiés, 1988, p. 51.